2 1

2 bed Apartment - To Let
Crowland House, Springfield Road
£2,200pcm

  • Two Double Bedrooms
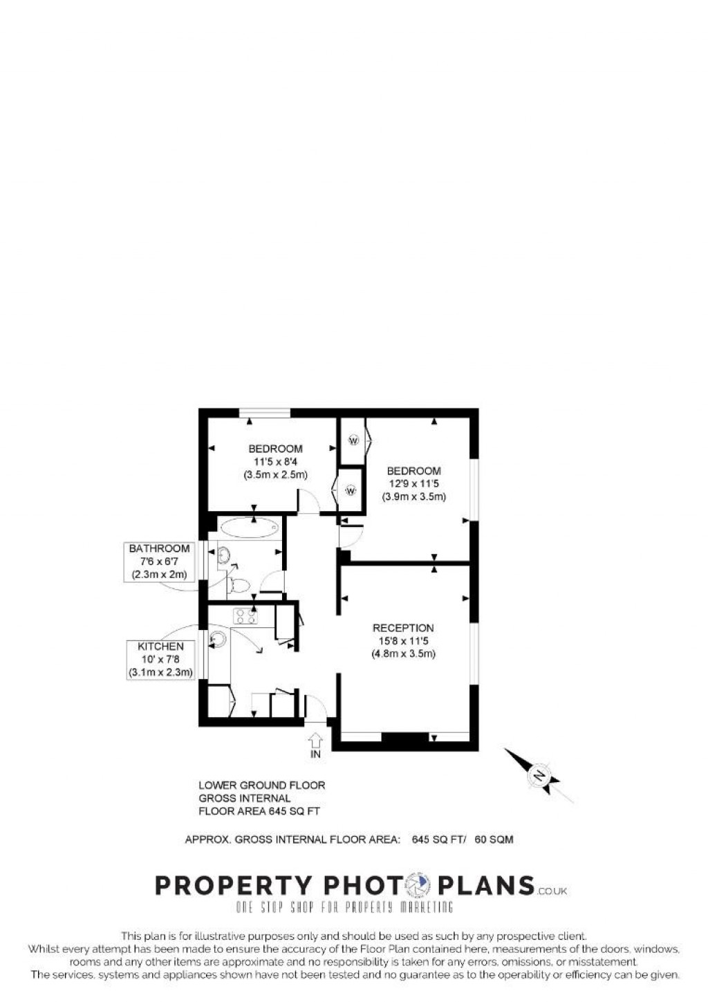
  • 645 Sq Ft
  • Council Tax Westminster £906pa
  • Wood Flooring Throughout
  • St Johns Wood Jubilee Line
A spacious and well-presented two double bedroom (645 sq ft) lower ground floor apartment.

This property benefits from wood flooring throughout, built-in storage in both bedrooms, good natural light, well proportioned rooms and low council tax rate.

Westminster Council Tax Band C - £906pa

The apartment is within short walking distance of the cafés and restaurants on and around Abbey Road, which also offers excellent bus links into Central London. St John’s Wood High Street and Underground Station (Jubilee Line) are approximately 0.6 miles away.

Reception (4.78 x 3.45)

Bedroom (3.86 x 3.43)

Bedroom (3.45 x 2.54)

Kitchen (3.02 x 2.31)

Floorplans For Crowland House, Springfield Road
EPC For Crowland House, Springfield Road
Arrange a viewing for Crowland House, Springfield Road

For further details on this property please call us on:
020 7372 5000

Download PDF Arrange Viewing